Nietypowe mieszkanie w Krakowie - doradźcie / gdzie 2 pokoje z osobną kuchnią

Forum dla osób, które zastanawiają się jaka lokalizacja mieszkania w Krakowie jest najlepsza? W której dzielnicy Krakowa dobrze się mieszka? Ciekawe mijsca w Krakowie i Małopolsce.
DPM
Posty: 3
Rejestracja: 08 lip 2021, 14:17

Nietypowe mieszkanie w Krakowie - doradźcie / gdzie 2 pokoje z osobną kuchnią

Postautor: DPM » 08 lip 2021, 14:22

Cześć

Od pewnego czasu zamierzam się na kupno mieszkania. Z uwagi na mnogość ofert i niemożność ogarnięcia nawet niewielkiej części tego wszystkiego oraz to, że nie jestem w tym zakresie specjalistą, postanowiłem zarejestrować się na forum poświęconym tematyce rynku nieruchomości i tutaj poszukać porad. Mam nadzieję, że dobrze trafiłem :-).
Jako, że moje wymagania są – jak się okazuje – nietypowe jak na dzisiejsze standardy mieszkaniowe, zwracam się do was z pytaniami i prośbą o pomoc. Pokrótce, jakiego mieszkania szukam:
1. Lokalizacja – Kraków
2. Mieszkanie z rynku pierwotnego
3. 2 pokoje, oddzielna kuchnia, łazienka (może być połączona z ubikacją), przedpokój, balkon. Ewentualnie 3 pokoje z opcją połączenie ich w 1 pokój, jeśli pojedynczy pokój nie będzie spełniał warunku zapisanego w punkcie 4 (wielkość).
4. Większy pokój o powierzchni co najmniej 24 mkw i wysokości w świetle co najmniej 2,5m. Mniejszy pokój o powierzchni co najmniej 12 mkw i wysokości w świetle co najmniej 2,5m
5. Oba pokoje oddzielone od siebie kuchnią tak, by nie sąsiadowały ze sobą przez ścianę
6. Brak pomieszczeń przechodnich
7. Brak przymusowego do wykupienia miejsca parkingowego (czyli dodatkowych 30000PLN kosztów, o których deweloper w swoich prospektach reklamowych nie wspomina)
8. Ostatnie piętro, albo parter, możliwie tak, aby większy pokój nie był pomieszczeniem sąsiadującym przez ścianę działową z innym mieszkaniem (np. pomieszczenie narożne, albo wychodzące na wejście do budynku/klatkę schodową/korytarz). Chodzi o jak najlepszą izolacyjność akustyczną od mieszkań sąsiednich

Cztery pierwsze punkty to absolutna konieczność, piąty też jest ważny. Reszta jest mniej ważna, ale już z tymi pięcioma jest problem. Pomożecie? Wskażecie takie oferty?
W załączniku zamieszczam rzuty mieszkań, które kiedyś udało mi się zaleźć i które spełniają powyższe wymagania. Oczywiście w momencie, gdy je znalazłem, były już sprzedane – a w zasadzie sprzedana była dziura w ziemi, na której miał powstać budynek z tymi mieszkaniami.
Dzięki za propozycje!

Pozdrawiam
Załączniki
Mieszkanie 2.jpg
Mieszkanie 2.jpg (111.04 KiB) Przejrzano 5225 razy
Mieszkanie 1.jpg
Mieszkanie 1.jpg (94.68 KiB) Przejrzano 5225 razy
Ostatnio zmieniony 09 lip 2021, 7:29 przez DPM, łącznie zmieniany 2 razy.


Nikles
Posty: 85
Rejestracja: 01 kwie 2020, 9:48

Re: Nietypowe mieszkanie w Krakowie - doradźcie / gdzie 2 pokoje z osobną kuchnią

Postautor: Nikles » 08 lip 2021, 16:13

Coś takiego wiedziałem na Fabryczna City: mieszkania.inter-bud.pl/szczegoly/mieszkanie/5222
Jest chyba zarezerwowane, ale trzeba pytać. No i rzut nie bardzo jak na tą kasę... :)

DPM
Posty: 3
Rejestracja: 08 lip 2021, 14:17

Re: Nietypowe mieszkanie w Krakowie - doradźcie / gdzie 2 pokoje z osobną kuchnią

Postautor: DPM » 08 lip 2021, 17:17

incinerator pisze:Widziałem podobne na Fredry 6. Z tego co wiem to nie mają oni pełnej ofery na stronie tylko trzeba pytać w biurze sprzedaży.

Dzięki, są tam mieszkania spełniające moje wymagania, oprócz tego dot. wielkości pomieszczeń. W obecnej inwestycji już większych nie będzie, ale możliwe, że w następnym etapie coś się znajdzie.
Tak czy inaczej - poszukiwania trwają :-).
Załączniki
Miezkanie, Fredry 6.jpg
Miezkanie, Fredry 6.jpg (193.2 KiB) Przejrzano 5085 razy


projekty1
Posty: 162
Rejestracja: 12 maja 2021, 8:34

Re: Nietypowe mieszkanie w Krakowie - doradźcie

Postautor: projekty1 » 09 lip 2021, 0:03

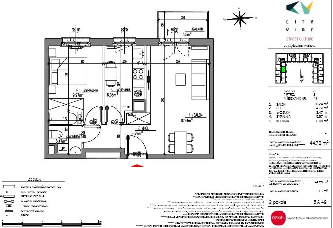
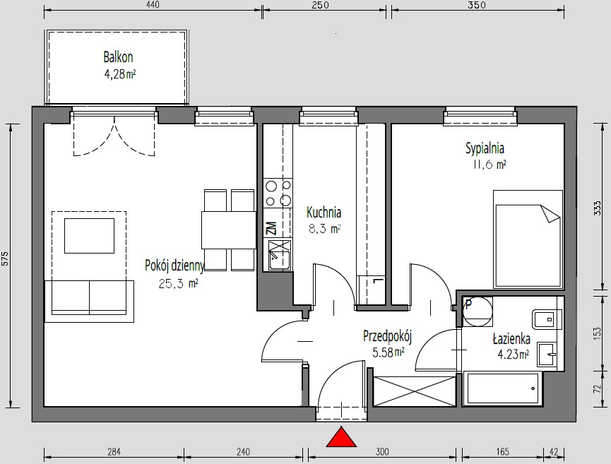
Tak patrzę na te Twoje wymagania i mieszkania, które oglądasz i mam ważenie, że są to dość skrajne propozycje. Z jednej strony bardzo klasyczne układy z oddzielną kuchnią, a z drugiej skośne ściany. Takie klasyczne układy z wydzieloną kuchnią w nowym budownictwie są mniej popularne niż to było kiedyś i łatwiej Ci będzie znaleźć mieszkanie z rynku wtórnego niż coś nowego z takim układem. Po drugie dwa rzuty mieszkań, które zamieściłeś może i mają wydzieloną kuchnię, ale pytanie jaka jest jej jakość i co tam można zrobić, aby było funkcjonalnie. Wąskie i długie kuchnie są średnio użyteczne, czasem mniejszym złem jest otwarta kuchnia jak tu:
https://bryksy.pl/inwestycja/saska-blu- ... anie/86-10

Jeśli zaś chodzi o pierwszą propozycje i skośne ściany, to średni pomysł, bo ta dodatkowa powierzchnia w salonie jest złudna, gdyż na tych skosach nic sensownego nie zaprojektujesz ani ni postawisz - zmarnowana powierzchnia, dodatkowo mało ustawne mieszkanie i trudno je będzie sprzedać, gdyś szukał pod inwestycje.

Co do miejsca postojowego, to może jednak warto nad ty się zastanowić jeszcze, bo Kraków nie należy do łatwych pod względem parkowania miejsc, a sprzedanie mieszkania bez miejsca postojowego będzie trudniejsze. Nawet jeśli nie masz samochodu - możesz je wynająć, albo po prostu mieć jak ktoś do Ciebie przyjedzie, ale oczywiście to Twoja decyzja.

Z mieszka pasujących do Twoich preferencji popatrz jeszcze na to
Załączniki
Nowa Siewna.JPG
Nowa Siewna.JPG (56.67 KiB) Przejrzano 4917 razy
Glogera Budopol.JPG
Glogera Budopol.JPG (57.61 KiB) Przejrzano 4917 razy
City Vibe Myśliwska.JPG
City Vibe Myśliwska.JPG (69.61 KiB) Przejrzano 4917 razy

projekty1
Posty: 162
Rejestracja: 12 maja 2021, 8:34

Re: Nietypowe mieszkanie w Krakowie - doradźcie / gdzie 2 pokoje z osobną kuchnią

Postautor: projekty1 » 09 lip 2021, 0:24

Jeszcze takie znalazłam. W pierwszym można domknąć ścianą kuchnię i masz zamknięte pomieszczenie. Myślę, że powinieneś rozszerzyć krąg poszukiwana o takie mieszkania z opcją wydzielenia kuchni :) Warunkiem jest okno w części kuchennej.
Załączniki
Sentotu.JPG
Sentotu.JPG (62.13 KiB) Przejrzano 4906 razy
Nowa Siewna 2.JPG
Nowa Siewna 2.JPG (63.26 KiB) Przejrzano 4906 razy

DPM
Posty: 3
Rejestracja: 08 lip 2021, 14:17

Re: Nietypowe mieszkanie w Krakowie - doradźcie / gdzie 2 pokoje z osobną kuchnią

Postautor: DPM » 09 lip 2021, 7:08

Dzięki za kolejne propozycje.
Skośne ściany to fatalna rzecz, wiadomo, i wolałbym ich nie mieć. Ale akurat ten przykład z pierwszego rzutu jest dla mnie do przyjęcia ;-). Na tej ścianie jest okno, więc i tak wiele by się tam nie postawiło, a i sam skos jest niewielki.
Oddzielna kuchnia to u mnie mus z powodów, o których tutaj nie ma co pisać, bo to zupełnie inny temat. I musi być to pomieszczenie zamknięte, z drzwiami. Gdy zacząłem się interesować tematem zakupu mieszkania, to ze sporym zdziwieniem przyjąłem fakt, że już się tak nie buduje. Tak półżartem mówiąc – oby kiedyś deweloperzy nie wymyślili rozwiązania w postaci pokoju z aneksem ubikacyjnym ;-).
Miejsce postojowe – to też przemyślany wymóg i także dyktowany innymi powodami, niezwiązanymi z tematem mieszkaniowym. Jeśli pozostałe kwestie byłyby OK., to i to miejsce postojowe może być – najwyżej się je sprzeda.
Jest jeszcze inna opcja na spełnienie moich wymagań, którą też rozważam – mieszkanie 3-pokojowe i połączenie ze sobą dwóch pokoi.

projekty1
Posty: 162
Rejestracja: 12 maja 2021, 8:34

Re: Nietypowe mieszkanie w Krakowie - doradźcie / gdzie 2 pokoje z osobną kuchnią

Postautor: projekty1 » 09 lip 2021, 10:03

DPM pisze:Dzięki za kolejne propozycje.
Skośne ściany to fatalna rzecz, wiadomo, i wolałbym ich nie mieć. Ale akurat ten przykład z pierwszego rzutu jest dla mnie do przyjęcia ;-). Na tej ścianie jest okno, więc i tak wiele by się tam nie postawiło, a i sam skos jest niewielki.
Oddzielna kuchnia to u mnie mus z powodów, o których tutaj nie ma co pisać, bo to zupełnie inny temat. I musi być to pomieszczenie zamknięte, z drzwiami. Gdy zacząłem się interesować tematem zakupu mieszkania, to ze sporym zdziwieniem przyjąłem fakt, że już się tak nie buduje. Tak półżartem mówiąc – oby kiedyś deweloperzy nie wymyślili rozwiązania w postaci pokoju z aneksem ubikacyjnym ;-).
Miejsce postojowe – to też przemyślany wymóg i także dyktowany innymi powodami, niezwiązanymi z tematem mieszkaniowym. Jeśli pozostałe kwestie byłyby OK., to i to miejsce postojowe może być – najwyżej się je sprzeda.
Jest jeszcze inna opcja na spełnienie moich wymagań, którą też rozważam – mieszkanie 3-pokojowe i połączenie ze sobą dwóch pokoi.


Co do skośnych ścian, to gdyby w przesłanym przez Ciebie rzucie mieszkania nie było okna na skośnej ścianie - zdecydowanie o wiele więcej można by zrobić - np. zabudowę, która wyprostowałaby to pomieszczenie, tak więc skosy nie są do końca złe - zależy gdzie są umiejscowione. Gdybyś potrzebował fachowej pomocy tak przy wyborze jak i zrobieniu projektu - zapraszam, chętnie pomogę :)

Zakup mieszkania, szczególnie pierwszego, to ciężki temat i nigdy nie ma gwarancji, że dobrze wybrałeś, bo zawsze mogą wybudować coś lepszego. Fajnie, że sobie przyjąłeś jakieś kryteria wyboru, ale pamiętaj nie można mieć wszystkiego. Myślę że prędzej będziesz cos przerabiał niz kupisz gotowego wg. punktów :P

Co do tej oddzielnej kuchni, to też mi bliżej do tego typu układów niż do otwartej przestrzeni, ale jak już ma być ta oddzielna kuchnia, to niech to pomieszczenie ma co najmniej 200-240 cm szerokości i nie jest długie i wąskie, bo jak odliczysz zabudowę kuchenną (szafki) po jednej i drugiej str 2x60 cm=120 cm, to to, co Ci zostanie - jest przestrzenią na poruszanie się i umówmy się w kuchni o szerokości 180 cm jak często widzę przy mieszkaniach 2-pokojowych zostaje Ci 60 cm tunel i kuchnia owszem jest oddzielna, tylko co z tego, jak kompletnie niefunkcjonalna. Kuchnia jakiej szukasz myślę, że może się pojawić w mieszkaniach 2-pokojowych ok. 50 m2, ale w tych 40-45 m2 próżno jej szukać i lepiej jej na siłę nie zabudowywać, właśnie po to, żeby mieć luz przy blacie, a nie przeciskać się koło ściany. Ja też chciałam mieć oddzielna kuchnię i skończyłam z otwartą :D

Trendy w budownictwie dyktuje rynek. Deweloperzy mogą wybudować więcej mieszkań na tej samej przestrzeni. Ściany zajmują miejsce - średnio ściany działowe zabierają 8-12 cm z pomieszczenia. Jakby tak zsumować wszystkie ściany działowe na całym piętrze wyjdzie dodatkowa kawalerka albo i 2, czyli deweloper więcej zarobi :) Przy małych metrażach otwarte przestrzenie w mieszkaniach dają poczucie większej przestrzeni i klienci chętniej je kupią niż jak wejdą do tego samego mieszkania ze ścianami, bo powiedzą, że klitka :P

Co do miejsca postojowego - to nie zawsze da się je sprzedać, bo często jest na tej samej księdze wieczystej co mieszkanie i jest zbywalne tylko razem z nim. Sprzedać można tylko takie miejsca postojowe, które mają odrębną księgę wieczystą, więc zanim kupisz, to się upewnij jak jest u danego dewelopera, żebyś się nie wkopał :)

projekty1
Posty: 162
Rejestracja: 12 maja 2021, 8:34

Re: Nietypowe mieszkanie w Krakowie - doradźcie / gdzie 2 pokoje z osobną kuchnią

Postautor: projekty1 » 09 lip 2021, 11:31

Tu masz kolejnych parę propozycji w większym metrażu
Załączniki
Mieskzaj w miescie.JPG
Mieskzaj w miescie.JPG (67.34 KiB) Przejrzano 4717 razy
Mieszkaj w miescie Panistow.JPG
Mieszkaj w miescie Panistow.JPG (59.64 KiB) Przejrzano 4717 razy
Mieszkaj w miescie rezyserow.JPG
Mieszkaj w miescie rezyserow.JPG (71.12 KiB) Przejrzano 4717 razy


projekty1
Posty: 162
Rejestracja: 12 maja 2021, 8:34

Re: Nietypowe mieszkanie w Krakowie - doradźcie / gdzie 2 pokoje z osobną kuchnią

Postautor: projekty1 » 09 lip 2021, 11:32

I kolejne :)
Załączniki
Os Zloetej Jesieni.JPG
Os Zloetej Jesieni.JPG (76.87 KiB) Przejrzano 4716 razy
Przestrzenie Banacha.JPG
Przestrzenie Banacha.JPG (78.21 KiB) Przejrzano 4716 razy
Sentotu.JPG
Sentotu.JPG (94.78 KiB) Przejrzano 4716 razy

projekty1
Posty: 162
Rejestracja: 12 maja 2021, 8:34

Re: Nietypowe mieszkanie w Krakowie - doradźcie / gdzie 2 pokoje z osobną kuchnią

Postautor: projekty1 » 09 lip 2021, 11:33

No i te najlepsze, ale za miliony monet :) Tam gdzie niedomknięta ściana w kuchni można ją dobudować i kuchnia będzie wydzielona ;)
Załączniki
SolarisPark3.JPG
SolarisPark3.JPG (139.46 KiB) Przejrzano 4574 razy
SolarisPark2.JPG
SolarisPark2.JPG (137.47 KiB) Przejrzano 4574 razy
SolarisPark.JPG
SolarisPark.JPG (136.47 KiB) Przejrzano 4574 razy



Wróć do „Gdzie i jak kupić mieszkanie w Krakowie forum? Ciekawe w Małopolsce”

Kto jest online

Użytkownicy przeglądający to forum: Obecnie na forum nie ma żadnego zarejestrowanego użytkownika i 16 gości